Appartamenti quadrilocale in vendita via Pavone 10, Banchette, località Borgo Nuovo

Piemonte Torino Banchette Borgo Nuovo Rif. 1009
    Via Pavone 10
+

AMPIO QUADRILOCALE CIRCONDATO DAL VERDE

Prezzo
€ 140.000
Contratto
Vendita
Tipologia
Appartamenti
Destinazione
Residenziale
Regione
Piemonte
Provincia
Torino
Comune
Banchette
Località
Borgo Nuovo
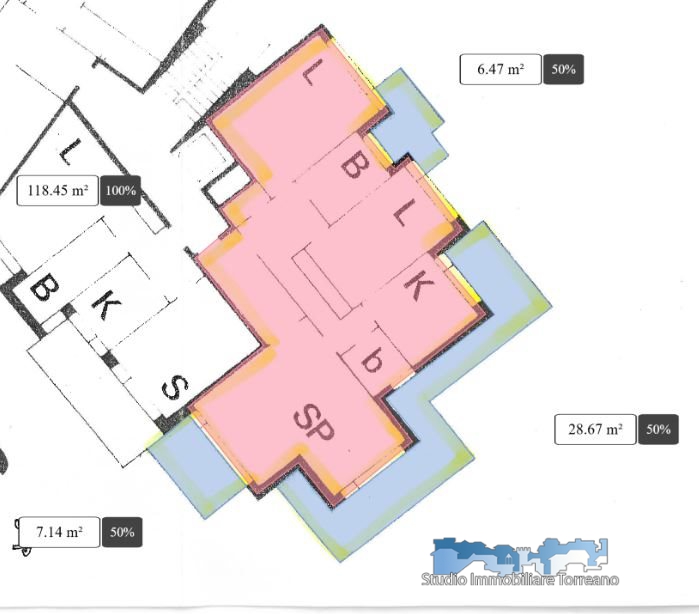
Superficie
159 m² Dettagli
Superficie Commerciale
141 m²
Locali
4
Camere
2
Bagni
2
Condominio mensile
€ 180 incluse di Acqua e Riscaldamento

Immerso nel verde e situato in una zona comoda e ben servita, questo ampio quadrilocale di è la soluzione ideale per chi cerca un'abitazione residenziale tranquilla ma comoda a tutto. Situato al secondo piano di un edificio degli anni '70 dotato di ascensore e privo di barriere architettoniche, l'appartamento gode di una tripla esposizione e di una luminosità naturale eccezionale. L'ingresso in disimpegno conduce alla zona giorno composta da un ampio salone, una cucina abitabile e un servizio, tutti con accesso ad un ampio balcone che abbraccia l'intera proprietà. La zona notte è composta da due camere da letto, un ulteriore servizio, un ripostiglio e un altro balcone. Inoltre, completano la proprietà una cantina e un ampio box auto. L'immobile si trova nel complesso Monviso, una vera oasi di tranquillità. Non lasciarti sfuggire questa occasione unica per vivere in uno spazio luminoso e circondato dal verde. Contattaci subito e prenota una visita, il tuo nuovo appartamento ti sta aspettando.

Classe Energetica: 252.10 kWh/m2

Caratteristiche

Condizioni: Buone Condizioni
Riscaldamento: Centralizzato con contabilizzatori
Parcheggio: Posto Auto Scoperto
Giardino m2: Comune
Piano: 2 - piani edificio: 5
Terrazzo: Si
Balcone: Si
Ascensore:
Ingresso
Riscaldamento con contabilizzatori
Cortile
Cucina Abitabile
Cantina
Ripostiglio

Foto

AMPIO QUADRILOCALE CIRCONDATO DAL VERDE - 1
AMPIO QUADRILOCALE CIRCONDATO DAL VERDE - 2
AMPIO QUADRILOCALE CIRCONDATO DAL VERDE - 3
AMPIO QUADRILOCALE CIRCONDATO DAL VERDE - 4
AMPIO QUADRILOCALE CIRCONDATO DAL VERDE - 5
AMPIO QUADRILOCALE CIRCONDATO DAL VERDE - 6
AMPIO QUADRILOCALE CIRCONDATO DAL VERDE - 7
AMPIO QUADRILOCALE CIRCONDATO DAL VERDE - 8
AMPIO QUADRILOCALE CIRCONDATO DAL VERDE - 9
AMPIO QUADRILOCALE CIRCONDATO DAL VERDE - 10
AMPIO QUADRILOCALE CIRCONDATO DAL VERDE - 11
AMPIO QUADRILOCALE CIRCONDATO DAL VERDE - 12
AMPIO QUADRILOCALE CIRCONDATO DAL VERDE - 13
AMPIO QUADRILOCALE CIRCONDATO DAL VERDE - 14
AMPIO QUADRILOCALE CIRCONDATO DAL VERDE - 15
AMPIO QUADRILOCALE CIRCONDATO DAL VERDE - 16
AMPIO QUADRILOCALE CIRCONDATO DAL VERDE - 17
AMPIO QUADRILOCALE CIRCONDATO DAL VERDE - 18
AMPIO QUADRILOCALE CIRCONDATO DAL VERDE - 19
AMPIO QUADRILOCALE CIRCONDATO DAL VERDE - 20
AMPIO QUADRILOCALE CIRCONDATO DAL VERDE - 21
AMPIO QUADRILOCALE CIRCONDATO DAL VERDE - 22
AMPIO QUADRILOCALE CIRCONDATO DAL VERDE - 23
AMPIO QUADRILOCALE CIRCONDATO DAL VERDE - 24
AMPIO QUADRILOCALE CIRCONDATO DAL VERDE - 25
AMPIO QUADRILOCALE CIRCONDATO DAL VERDE - 26
AMPIO QUADRILOCALE CIRCONDATO DAL VERDE - 27
AMPIO QUADRILOCALE CIRCONDATO DAL VERDE - 28
AMPIO QUADRILOCALE CIRCONDATO DAL VERDE - 29
AMPIO QUADRILOCALE CIRCONDATO DAL VERDE - 30
AMPIO QUADRILOCALE CIRCONDATO DAL VERDE - 31
AMPIO QUADRILOCALE CIRCONDATO DAL VERDE - 32
AMPIO QUADRILOCALE CIRCONDATO DAL VERDE - 33
AMPIO QUADRILOCALE CIRCONDATO DAL VERDE - 34
AMPIO QUADRILOCALE CIRCONDATO DAL VERDE - 35
AMPIO QUADRILOCALE CIRCONDATO DAL VERDE - 36
AMPIO QUADRILOCALE CIRCONDATO DAL VERDE - 37
AMPIO QUADRILOCALE CIRCONDATO DAL VERDE - 38
AMPIO QUADRILOCALE CIRCONDATO DAL VERDE - 39

Planimetrie

AMPIO QUADRILOCALE CIRCONDATO DAL VERDE - 1

Mappa

Immobili Correlati

Vendita
+  

Appartamenti quadrilocale in vendita via Pavone 12, Banchette, località Borgo Nuovo

Piemonte - Torino - Banchette - Borgo Nuovo - Rif. 1015
€ 140.000
Vedi Foto e Dettagli